Informe rector BUAP
Diseño escenográfico, producción y videomapping
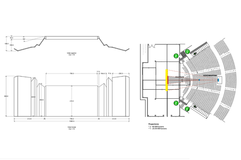
Desarrollamos la producción y el diseño de la escenografía para el tercer informe del rector Alfonso Esparza de la Universidad Benemérita de Puebla (BUAP). Implementamos un avanzado soporte multimedia que permitió la presentación de rendiciones y resultados mediante el uso de diapositivas y animaciones de videomapping. Este enfoque, basado en la tecnología e innovación, facilitó la visualización de la información en un formato amplio y atractivo.
Cliente:
BUAP
Año:
2016
Lugar:
Puebla, México

















